扫一扫在手机上阅读
济宁文化中心包括群艺馆、图书馆、博物馆、美术馆以及配套的商业综合体。项目从构想之初就不同凡响,建筑设计竞赛邀约了包括矶崎新(Arata Isozaki,2019普利兹克奖得主)、马里奥·博塔(Mario Botta)、西泽立卫(Nishizawa Ryue, 2010普利兹克奖得主)、何镜堂院士等世界一流大师和知名的建筑设计单位参与。
这是一个难度极大的挑战,济宁文化中心集“文娱、艺术、展览、收藏、创作、商业”等多元功能为一体,各个建筑单体既需要在世界级建筑大师们的创作之下呈现“唯一性”的特色,又需要相互融合,和谐共生。
景观的参与和实践正是遵循“有机缝合”这一基本原则,来塑造“整体、共情、协调”的外部公共环境,把多样化的城市文化公共建筑,通过景观环境的创新思维有机地融合为整体,共同构建了文化中心这一综合体,建筑与景观的相得益彰造就了济宁市新的文化地标和“城市名片”。
▼文化中心整体鸟瞰

▼文化中心一期鸟瞰图-“和而不同”的场馆建筑与景观有机缝合

区位
项目基地位于济宁市太白湖新区核心位置,西侧紧邻太白湖,南侧远眺北湖生态旅游区,周边自然资源十分优越。项目用地紧靠圣贤路与运河路,区域内城市路网交通系统发达。从区位上看,5公里都市圈内有济宁行政中心、市民公园、体育中心、城市展览馆、儿童公园等市级重要项目,文化中心的建设无疑是整体提升城市公共文化水平和城市品牌竞争力的又一个重大举措。
▼项目区位

高地公园与绿谷
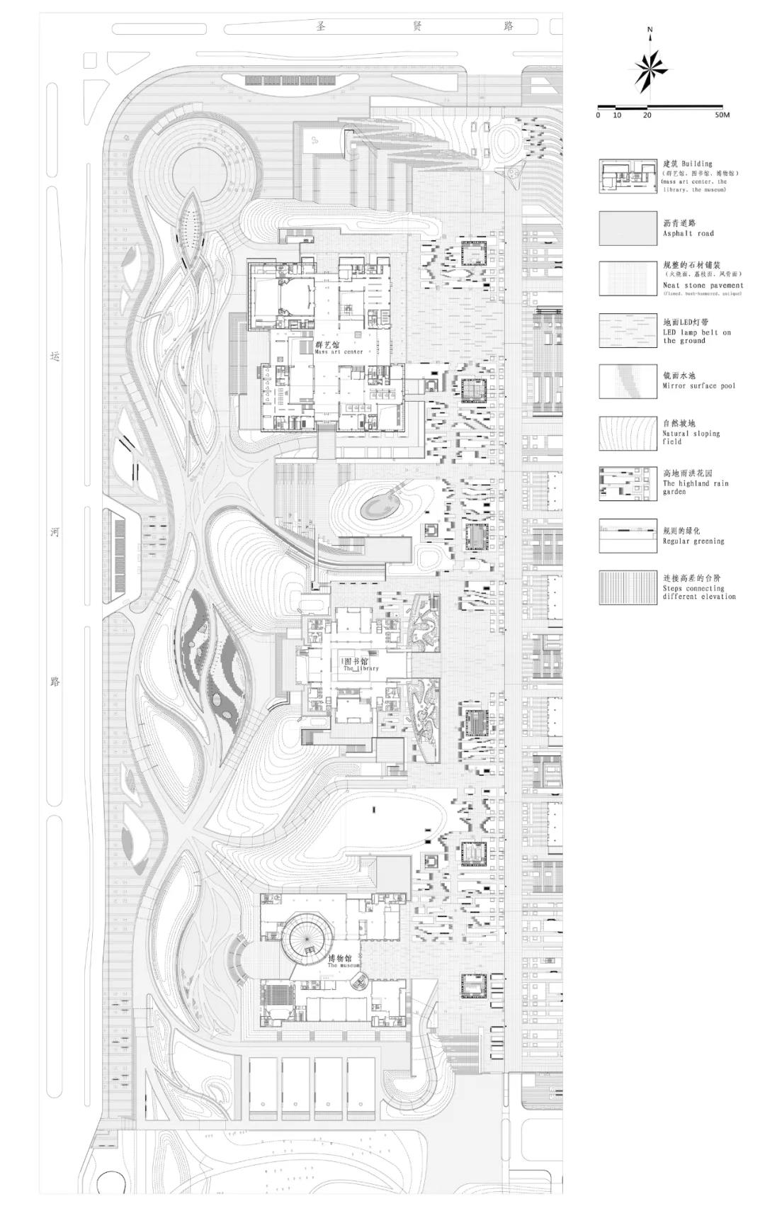
济宁文化中心一期包含4个独立场馆,场馆建筑布局呈南北向“一字”排开,整体风格端庄大方,又展现“和而不同”的设计理念。在场馆建筑带的东西两侧以及建筑单体之间是建筑外部环境,主要由高地公园和绿谷两部分组成。
▼文化中心景观设计构思

▼场馆建筑布局呈南北向“一字”排开

高地公园位于场馆建筑东侧,是一个高6米,南北长约690米,面积达33000平方米的超大平台,下部为停车库及配套服务建筑,它将一期单体建筑和二期商业建筑群有机地粘合起来,可以讲高地公园是建筑之间的一个“共情”空间。绿谷位于场馆建筑的西侧,紧靠运河路,大部分人流可以从绿谷进入各个文化建筑。绿谷现状标高比城市道路略低1米左右,且与太白湖生态风景区仅有“一路之隔”,从区位及视线上来看,文化中心西立面是展现城市形象的重要“窗口”。
▼协调高地公园与绿谷的自然坡地

▼绿谷局部鸟瞰-自由形态的园路与“梭形”绿地

▼场馆建筑之间“缓冲区”景观鸟瞰

▼自然坡地上望湖台鸟瞰

在景观构思之初,由于场地特征、功能结构、交通方式、竖向高度的不同,高地公园和绿谷被赋予了不同的设计策略。文化建筑的主入口被设置于高地之上,未来高地公园必将是文化建筑和商业建筑游客的交汇“客厅”,人流的聚合和流动需要较大规模的场地设计。同时又由于高地公园依存于地库建筑之上,植物栽植需要和建筑结构模数相吻合,因此高地公园被设计为整体的规则式景观。
▼高地公园的规则式景观

▼多功能的建筑主入口广场与立体交通

▼高地公园雨洪花园


而绿谷则有所不同,它不拘泥于建筑,竖向上突出洼地的绿谷感受,可以充分利用西侧人行道和东侧高地公园的竖向高差,通过地形的整体营造来强调空间的自由流动、变化以及自然的风致野趣。规则的高地公园为游客提供了大量随处可停留的林荫休憩空间,而绿谷则通过自由组织的空间形态,分层次地将庞大复杂的竖向、交通、出入口等全部整合在一起。
▼绿谷群艺馆前景观局部鸟瞰

▼绿谷群艺馆前自由形态的景观


▼绿谷图书馆主入口镜面水池


高地公园理性的模数空间和绿谷的自由形态形成了较强烈的对比,从设计的效果来看,无论理性还是自由缺一不可,都是建筑个体特征及其群体关系最佳演变的结果,也都是建筑自身功能需求造就的结果。
▼高地公园理性的模数空间


▼高地公园南北向与东西向步行空间

▼高地公园链接各个下沉广场或场馆次入口的通道

▼高地公园模数化精细铺装与绿化有机融合

▼高地公园随处可坐的“共情”休憩空间


在高地和绿谷之间,也即是理性和自由之间的过渡空间则大胆地“涂抹”绿坡,用自由的大体块“梭形”坡地的渗透介入来模糊两者的差异,自然景观成为了建筑最好的背景,将原本单调、生硬的建筑边界揉搓得生动柔和。文化场馆既保持着内在的结构秩序,又呈现出高地与绿谷、景观与建筑有机缝合,和谐共生的空间关系。
▼绿谷“梭形”休憩空间

▼绿谷充满生命力的观赏草植物景观

▼绿谷自由形态的坡地景观


▼绿谷稳定的常绿植物景观与坐凳结合效果

景观角色
在文化中心的景观设计中,始终需要面对的问题就是如何看待这些独特的文化建筑,以及如何处理建筑和景观的关系。在E.K.迈耶的一篇随笔中,他对景观建筑学中普遍存在而又有害的二元性思维模式做了一个有启发性的批评。迈耶认为:“景观建筑学是一个混合行为,不能把二元性的两方面作为对立的情况来简单的描述”。他认为建筑和景观、文化和自然这些二元的形式是过时的看法,它们在本世纪已经最大限度地影响了人们对景观建筑学的兴趣以及对其重要性的认识。文化中心的景观角色首先定位于对建筑主体地位的认同,其次得益于迈耶对景观“混合行为”的论述。景观要避免突显自我,绝不是通过咄咄逼人的景观元素,创造一个独立于建筑的“震撼”效果,这种“震撼”本质上就是一种二元性的效果。
▼高地公园“前场”景观


文化中心景观试图尝试介入“轻柔”的,且具有生命力的自然景观来化解基地及建筑彼此间的“矛盾”,通过绿化、坡地、树阵、台地等朴素的景观元素来整合区域内的场地与竖向,使得庞大的人工建筑环境通过自然元素的渗透和融合得以消解。这种介入方式看起来有点“平淡”,但经过精细的细节处理,产生了一种开放空间尺度层次相宜,动静功能组合相得益彰,自然和人工交替可持续的景观环境,似乎高标准的创造了景观与建筑 “和谐共生”的理想场所。
▼有机融合的建筑次入口景观

▼绿谷群艺馆前开敞的景观空间

▼场馆建筑附属庭院景观


北入口与南入口
由于济宁市主城区位于文化中心基地的北面,北入口不仅承接着大量的人流,也是展现文化中心景观的门户。景观布局中将北入口设置于运河路与圣贤路的交汇处,人流沿运河路往南或从圣贤路往东都能够便捷的进入文化中心。从北入口往高地公园设置了一组“L”型大台阶,这个大台阶可以视作北入口往东的延续,从西面拾级而上的大台阶合理地解决了高地公园北轴“拐头”的收头问题。同时大台阶北部坡度较大,将“折型”的无障碍坡道和窄边台阶、绿化、消防通道等结合起来,不仅丰富了交通流线,也满足驻足而坐的休闲功能,竖向高差也得到了合理过渡。为避免大台阶和平台过于“生硬”,景观在大台阶中下部还置入了一块规则的大草坪以及文化中心的LOGO标识弧墙,这极大地增强了视觉导向,丰富了空间体验。
▼承接大量人流的北入口广场与大台阶

▼城市多功能的北入口广场

▼北入口大台阶与弧形LOGO墙


▼北入口大台阶与无障碍坡道组合景观效果

南入口是连接高地公园和南面美术馆、雕塑公园的重要节点,主要由大台阶、景观步行桥、消防坡道组成。游客可通过台阶便捷地从高地公园进入美术馆或雕塑公园,也可以从景观步行桥缓缓进入,步行桥桥面离地较高,是欣赏雕塑公园美景和美术馆荷状起伏屋顶的最佳“观景平台”。
▼与博物馆建筑形态相呼应的主入口广场

▼耐久的自由形态整石坐凳

台地上的中轴
由于高地公园的面积较大,东、西两翼商业建筑和文化场馆并列布置,这些建筑在高地上均设有人行主要或多重的出入口,因此高地公园是人流如织的交汇客厅。景观从交通可达性以及建筑功能的角度出发,沿南北向设置了一条11.2米宽的景观中轴,和中轴垂直的是种植模数统一的行列式绿化带。主导方向的中轴串联起各个建筑前的主入口广场,而垂直方向的行列式绿化带则可以将人流渗透到高地的角角落落,这样不仅合理地解决了人流动线问题,同时也兼顾到消防通道和消防登高面的设置。中轴两侧种植有双排林荫法桐,结合两侧的榉树树阵,轴线更显“仪式感”。礼仪的中轴、凸显建筑的入口广场、各自成组的雨洪花园,这些高地上各成一景的空间划分十分明确、理性,但功能和形态又是丰富和紧凑的,同时“旷”的广场与“奥”的雨洪花园,也顺理成章地形成了高地景观 “开、合”的空间序列。
▼与博物馆建筑形态相呼应的规则园景观



▼高地公园中轴林荫法桐树阵景观

▼现状保留乔木与补植绿化相融合

扩展的人行道
基地西侧运河路是南北向城市主干道,沿着这条主干道可以画卷般呈现气势如虹的场馆建筑及其景观环境。景观设计注意到一般标准设置的人行道只能解决单一的人行交通功能,不能为市民提供观赏“画卷”的驻足场所。因此运河路人行道被拓展至绿谷的边缘,以开敞、视线通透的硬质景观为主,打开了从运河路沿线欣赏文化中心西面风景的宽阔视野。同时人行道的“边缘”借助流线型的台阶和竖向设计,将绿谷的洼地特征进一步表现的淋漓尽致。
▼从扩展的人行道欣赏绿谷景观与场馆建筑美景

▼凸显场馆建筑的“下沉式”景观及自由形态园路


▼绿谷大尺度木制座凳与园路

▼园路景观


场馆入口及交通
济宁文化中心场馆建筑都具备主次入口,以及多用途、多竖向的支入口,这是公共建筑普遍的特点。景观不仅关注于协调好建筑各个入口的衔接处理,也注重游客活动行为的开展。因此在主要出入口处都布置了较大面积的广场或场地来疏散大人流,并通过适当的造景来创造有活力的多功能城市“前场”空间。而小入口则注重空间的归属感,提供安静、休闲、舒适的“后场”氛围。
▼庞大的交通体系与竖向

基地内实现人车分流,地面主要以步行交通为主,所有车辆均通过高地公园南北车行入口进入停车库。游客可以从停车库直接进入场馆,又或者通过下沉花园或庭院进入高地和绿谷。
▼开敞的场馆主入口与安静的场馆次入口景观

沿圣贤路和运河路设置了少量室外机动车停车场,并配备了出租车候车区和自行车停车区。基地内不设置标准的机动车道,为了满足建筑消防、管理等需求,景观进行了非标的车行道设计,通过自由形态的组织,将车行道和消防登高面等要求巧妙地演绎在园路、广场、硬质场地中,最终形成一体化的景观效果。同时借助非标的车道体系,绿谷开辟了VIP车行流线,从运河路可以快捷的到达各个场馆建筑主入口,并在入口处灵活配备了VIP临时停车位。
▼场馆建筑“缝隙”间衔接不同标高的立体交通空间


海绵城市
本项目响应国家海绵城市建设的要求,结合济宁市的降雨量、景观条件等因素,通过雨洪花园、自然的坡地、下沉绿地、柔性透水沥青、生态树池、植草沟等海绵城市工程型措施,对雨水进行渗透、收集(含分流)、过滤、储存、释放(使用),来构建海绵城市-低影响开发雨水系统。通过自然和人工等方式,以尽量控制场地内全年降水(75%以上)不外排为设计原则。
▼规则而富有变化的雨洪花园景观


自然坡地
高地公园与绿谷之间竖向有6米高差,利用这个高差形成的自然坡地是雨水和地表径流对土壤渗透的最佳场所,大面积可渗透的生态自然坡地将景观和生态、环保完美地结合起来。自然坡地主要分布在场馆建筑的南北“间隙”中,这样一方面区隔了各个独立的场馆,为场馆分别建立了自然“缓冲区”;另一方面绿坡和建筑交错,就仿佛一幅“青山郭外斜”的山水城市画卷。坡地地形大部分采取土丘自然放坡,在个别坡地较陡处通过隐形植草格固坡。由于土坡体积较大,在土丘的基础部分采用了局部空腔结构和分层土壤夯实技术。空腔结构紧靠场馆建筑边界布置,内部空间较大,不仅可以进行空间再利用,将影响美观的配套管理用房、设备用房(如水处理、地源热泵)等置入其中,同时也消除了覆土荷载侧推力对场馆建筑结构的影响。
▼自然坡地景观与空间利用-坡地下设置景观配套用房

▼绿谷群艺馆边唯美的微坡地形景观


▼有倒影的镜面水池与自然坡地景观

雨洪花园
高地公园景观面积为33000平方米,共设有五处雨洪花园(面积约16300平方米),用于收集来自广场、场地、屋顶的雨水。雨洪花园通过生态工程的技术手段,全面实施了海绵城市“渗、滞、蓄、净、用、排”的六字方针。
▼海绵城市技术措施分布

广阔的高地公园进行了全方位的雨水排水分区,大面积场地通过多段竖向放坡,在纵向坡底用隐形排水沟将地表雨水导入雨洪花园中。雨洪花园作为雨水滞留入渗区,土壤构造中设置有过滤涵养砂石层和上下双层盲管,上层盲管用于在土壤中释放收集来的地表水,下层盲管用于搜集经过沙滤层过滤后多余的雨水。同时在雨洪花园设置了8个地下蓄水模块(可蓄水417立方米),用于储存雨洪花园过滤后的多余雨水,以供后期的绿化浇灌使用。
▼雨洪花园-体系构成

为保证植被的良好生长。整个雨洪花园建筑结构降板1.5至2米,以满足大乔木种植覆土厚度的要求。为保证雨洪花园良好的渗水性,雨洪花园区域的地表场地结构板统一通过2.8米模数间距的立柱落在负2米的建筑结构梁板上。这样雨洪花园内的土壤是相通的,不仅便于植物根系生长,也使得雨洪花园通过整体性来保证城市海绵的实用性。为保证雨洪花园硬质铺装的透水性,结构板根据铺装模数纵向留缝5厘米,对应石材铺装纵向留缝1厘米,这样进一步解决了硬质场地上雨水下渗的问题。
▼雨洪花园鸟瞰及剖面

▼雨洪花园-不会阻断植物根系自由生长的支撑体系

生态植草沟
绿谷作为洼地是文化中心地势最低的地方,场地铺装全部采用柔性的透水沥青,高低起伏的整体塑形路面更有利于排水和渗水。同时在最低洼处布置了一条600米长,2米宽,0.5米深的植草沟,用以汇集全绿谷的雨水。植草沟可蓄水600 立方米,沟内雨水饱和后,可通过溢水井排入市政雨水管网系统,以达到“慢排缓释”的目的。植草沟种植了多样性的湿生植物,丰富了景观层次和效果。
▼收集雨水的生态植草沟鸟瞰与剖面

▼收集雨水的生态植草沟细部效果

生态树池
生态树池是对传统树池的填料进行改造,使之具有蓄存雨水、污染物去除等功能的设施。本项目树池均采用生态绿化种植树池,鼓励雨水渗透,也相应降低了投资成本。
▼可透水的生态树池与生态停车位

景观用水
本项目绿化采用自动喷灌和滴灌相组合的浇灌系统,以减少人工维护和用水量,并且水源均采用收集的雨水(当雨水不足时,可切换城市中水系统)。由于景观水景对水质要求较高,因此在坡地下空腔结构中设置了水处理用房,用设备进行物理处理。这样不仅水质能得到保证,水资源也可以重复利用。
▼图书馆主入口前水池景观


▼可坐人的水池甬道

▼场地及园路通过精细化的竖向控制与水池景观融为一体


▼镜面水池细部处理

▼水中漂浮的石材文化雕刻与直流喷泉

结语
济宁文化中心一期景观在深刻解读规划结构、建筑特点的基础之上,实施了各具特色的高地公园、绿谷的景观塑造,并通过整体的竖向设计,全面完整地重构了建筑的在地关系。同时用海绵城市的理念,将生态工程技术融入到景观设计当中,使得该项目无论对空间结构、交通体系、环境氛围、生态持续等景观自身理念的多元兼顾,还是在景观和这些“唯一性”的世界级建筑之间的空间融合等方面都取得了合谐共生,有机缝合的整体关系。
▼文化中心总平面图

▼文化中心一期景观平面图

项目详细信息
项目名称:济宁文化中心一期景观设计
设计方:LDG兰斯凯普
设计时间:2015年8月
完成年份:2019年5月
主创设计师:刘立立、何深华
设计团队:王文娟、黄睿霖、汪芳芳、肖佳君、何凤、黄应杰、吕万斌、石晶晶、吴亚宁、肖佳丽、程岑、肖滔、孔令军、戴奇宇、杨炳仁、黄彬辉、蔡崇林、唐菊敏、杨冬梅
项目地址:济宁市太白湖新区
项目面积:17公顷(一期)
摄影版权:LDG/熊世宝、肖滔、何深华
施工方:上海山水青园林建设有限公司
客户:济宁市城投文化旅游产业有限公司/济宁市城乡规划局
主要材料:天然石材、透水沥青、防腐木、金属、玻璃
合作方:
规划及群艺馆设计:天津市城市规划设计研究院,德阁建筑设计咨询(北京)有限公司
图书馆设计:何镜堂建筑创作研究院,华南理工大学建筑设计研究院
博物馆设计:马里奥•博塔建筑事务所,上海复旦规划设计研究院有限公司
美术馆设计:西泽立卫建筑事务所,华东建筑设计研究院有限公司
商业办公综合体设计:美国LLA建筑设计事务所,华东建筑设计研究总院
市政管网设计:济宁市规划设计研究院
---END---
转自:LDG兰斯凯普 景观设计小学徒
转载供学习之用
如有版权问题
我们将及时删除
——————————————————
致 读 者
欢迎广大读者和园林爱好者踊跃发布园林专业帖子
园林建材信息及相关施工工艺做法
在您提供的信息里
请提供您的
名称(网名或姓名、企业名称)
头像(可以是照片或图片)
联系方式(手机号码或邮箱、微信号)
——————————————————
企业信息应附有:
营业执照复印件(信息审核用)
企业介绍(厂家或苗圃,还请提供产品信息及相关图片)
企业网址
联系方式等信息
——————————————————
以上内容整理打包后
请发至公司邮箱
2198289928@qq.com

扫一扫关注微信